NOW BUILDING!
Poplar Village - Lot 28
Chester, VA
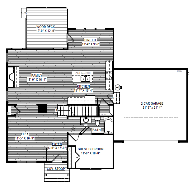
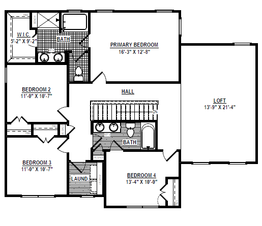
5
Beds
3
Baths
2,624
Sqft
community: Poplar Village
Plan: The Potomac
Priced at $534,733
