SECOND FLOOR PRIMARY
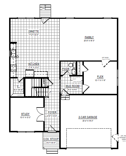
The Albany
Single Family
4
Beds
2.5
Baths
2,912
Sqft
Starting at $584,950
