About The Kate
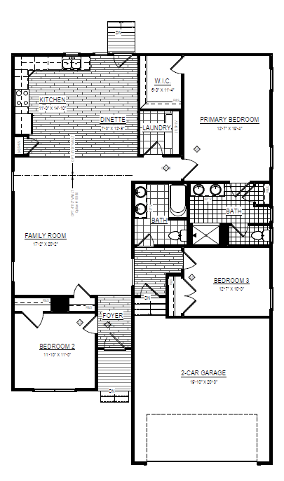
The Kate comes to Somerset Hill! This charming ranch is just the right size at 1614 sq/ft with 3 bedrooms and 2 baths. Upon entering this open concept floorplan, you’ll find one bedroom directly off the foyer. Another bedroom and full bathroom are off the mudroom hall near the front of the house, just steps from the open concept family room. The family room combined with the eat-in kitchen is a host’s dream! The kitchen boasts tons of cabinetry and countertop space plus the option to add a kitchen island for even more counter space. Down the hall off the family room, the primary bedroom suite provides privacy galore! Complete with a walk-in closet and a large bathroom with a private water closet, tiled shower, AND linen closet. Don’t miss out on this charming rancher!
Interactive Floor Plan
Plans
