About The Newport
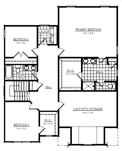
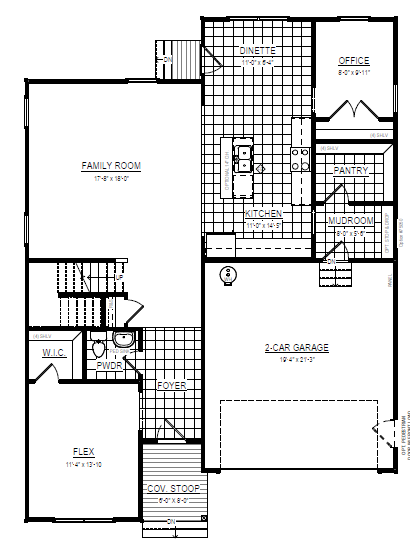
Say hello to one of Shurm Homes newest floorplans, The Newport. With its charming exterior and spacious interior, you’re sure to fall in love with this floorplan! Upon entering, you’ll find a flex space to your left, perfect for an office or playroom, alongside a powder room for guests. The family room opens to the eat in kitchen with island with plenty of cabinet space. The mudroom off the kitchen boasts a huge walk in pantry area and entry to the garage. There is a dedicated office space off the dinette as well as a wood deck, providing more space for entertaining. Upstairs, you’ll find 2 additional bedrooms, a full bathroom, and laundry room along with a large loft area. Also, upstairs you’ll find the expansive primary bedroom with ensuite bathroom that is fit for royalty, complete with a walk in closet. With many options to personalize this home to fit your needs (can go up to 5 bedrooms!), the Newport offers flexible living spaces, modern design features, and the opportunity to create a home that truly reflects your lifestyle!
Interactive Floor Plan
Plans
