About The Shenandoah

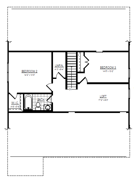
Meet The Shenandoah– with numerous interior and exterior options to personalize, this home is a showstopper! As you walk through the front door, you’ll find the study, adjacent to a half bath, coat closet, and laundry room (with storage!). The family room is open to the expansive kitchen and dinette. Step right outside through the rear door with the option for either a deck or screened porch that’s perfect for reading a book or enjoying the nice weather. A mudroom opposite the family room leads into the attached 2-car garage.  The Primary suite is hidden in the back of the home with his & hers walk in closets and bathroom with dual vanities and tiled shower. The second floor is complete with two additional bedrooms, a bathroom, and a loft with the option to extend the loft for additional living space! Photos are representative of the Shenandoah plan.

 

Interactive Floor Plan