About The Charles
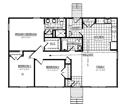
The Charles is a charming ranch style plan offering 1,232 square feet of single-level living, featuring three bedrooms and two baths. The open concept layout includes a spacious family room with an optional vaulted ceiling that flows into a modern kitchen, perfect for entertaining. The Primary bedroom is generously sized with an en-suite bath and a walk-in closet for ample storage. The two additional bedrooms share a full bath across the hall, making it ideal for families or guests. A convenient laundry room is located at the rear of the home. Options to expand the footprint of the home are also available!
Designed for simplicity and convenience, the Charles offers affordable comfort in a thoughtfully laid out space. Located in the desirable Poplar Village community in Chester, VA, this home puts you in the heart of convenience. With easy access to major interstates, shopping centers, dining options, and the Fall Line bike trail, everything you need is just minutes away.
Plans
