About The Bethany
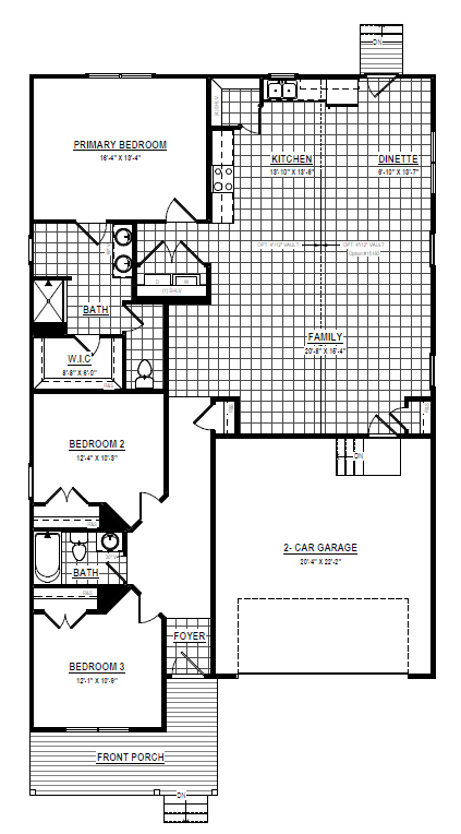
Say hello to the Bethany, a ranch plan with well thought out features and customizable options to fit your needs! The full front porch is perfect for enjoying a morning cup of coffee or reading a book. At the front of the home are two bedrooms and a full bathroom. The end of the entryway hall opens to the large common area. Here you’ll find the kitchen, dining room, and family room, perfect space for hosting! The private primary suite is tucked in the back with a large walk-in closet, and the bathroom is complete with tiled flooring, tiled shower. A hidden staircase takes you to the optional finished second floor. The second floor has up to 1,000 additional sq/ft, with a loft space, hall bathroom and TWO more bedrooms! Reach out to learn more about how you can build the Bethany on your land!
Plans
